Home
STUDIO
About
Clients
Team
Projects
Disability Housing
News
Say Hello
+0432 715 224
hello@archrdesign.com
www.archrdesign.com
Home
STUDIO
About
Clients
Team
Projects
Disability Housing
News
Say Hello
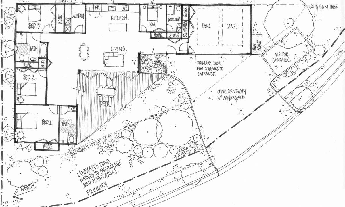
Ironbark Road SDA House
Date:
01.06.2018
Disability Housing Residential
Share: